Register to get pricing & floor plans for 27 Yorkville Avenue Condos

27 Yorkville Avenue Condos

27, Yorkville Avenue, Toronto, Ontario, M4W 1L1, Canada
Prices TBD
27 Yorkville Avenue Condos Details

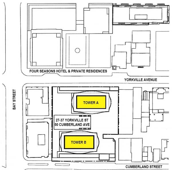
27 Yorkville Condos is a premier high-rise condominium development by Minto Communities, located at 27 Yorkville Avenue in the heart of Toronto’s prestigious Yorkville neighbourhood. The project will consist of two elegant towers rising 69 and 55 storeys, collectively offering 1,166 upscale residential units designed for modern urban living.

Set just steps from the intersection of Yonge & Bloor, this development is situated in one of Toronto’s most walkable and vibrant districts. With a Walk Score of 100, residents will have immediate access to luxury shopping, fine dining, cultural institutions, and green spaces. It’s also only a 4-minute walk to Yonge-Bloor Station, offering direct subway access in all directions.

Prices Will be Announce soon!

Condo 102 Storeys | 1166 Suites
Condo TBA
Condo Occupancy :
Condo Coming Soon

Popular Feeds

Property Details

  • Building Type: Condominium
  • Ownership: Condominium
  • Building Status: Pre-construction
  • Selling Status: Planning
  • Storeys: 102
  • Suites: 1166
Reasons To Buy

27 Yorkville Condos represents an exceptional opportunity to own in one of Toronto’s most prestigious and connected neighbourhoods. With stunning architecture, top-tier amenities, and unbeatable access to transit, employment hubs, and lifestyle conveniences, this project is ideal for both end-users seeking refined city living and investors targeting high-value, long-term growth.

27 Yorkville Avenue Condos Location

Latest Properties

Aquanova Condos at Lakeview Village

Mississauga, Ontario

Prices From $478,768's
Estimate Completion :

Aquanova Condos at Lakeview Village by Greenpark Homes is a…..

view Details

CALEDON TRAILS

Ontario

Prices From $1,099,900's
Estimate Completion :

Where big time amenities meet small time charm! Introducing Caledon…..

view Details